業務用総合厨房機器 製造・販売

三省堂実業株式会社

お問い合わせはコチラ

お問い合わせはコチラ  

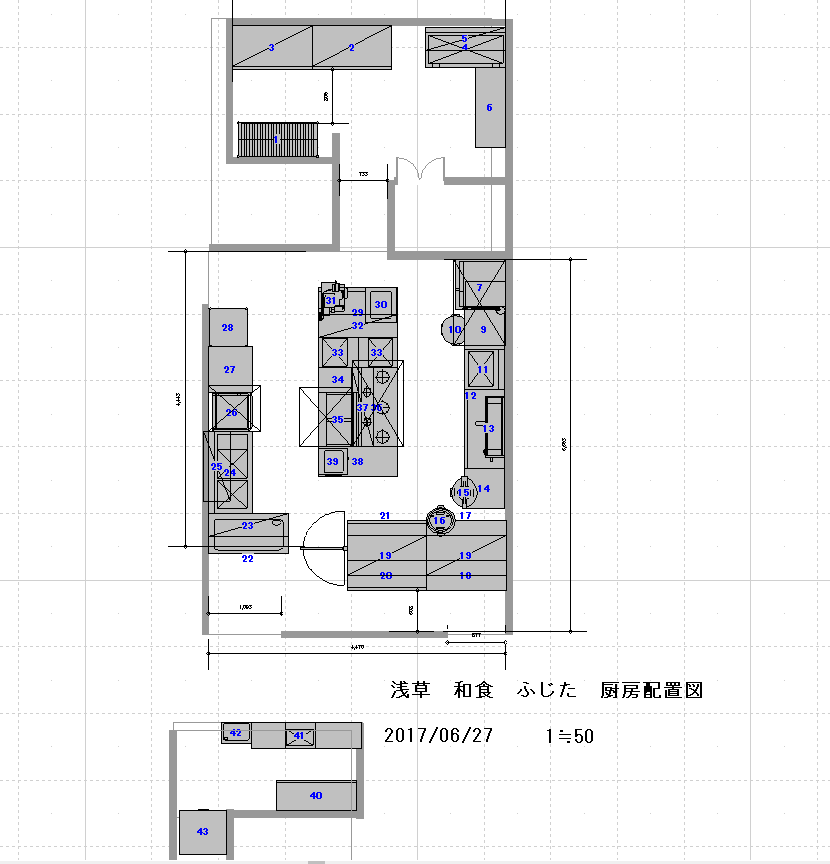
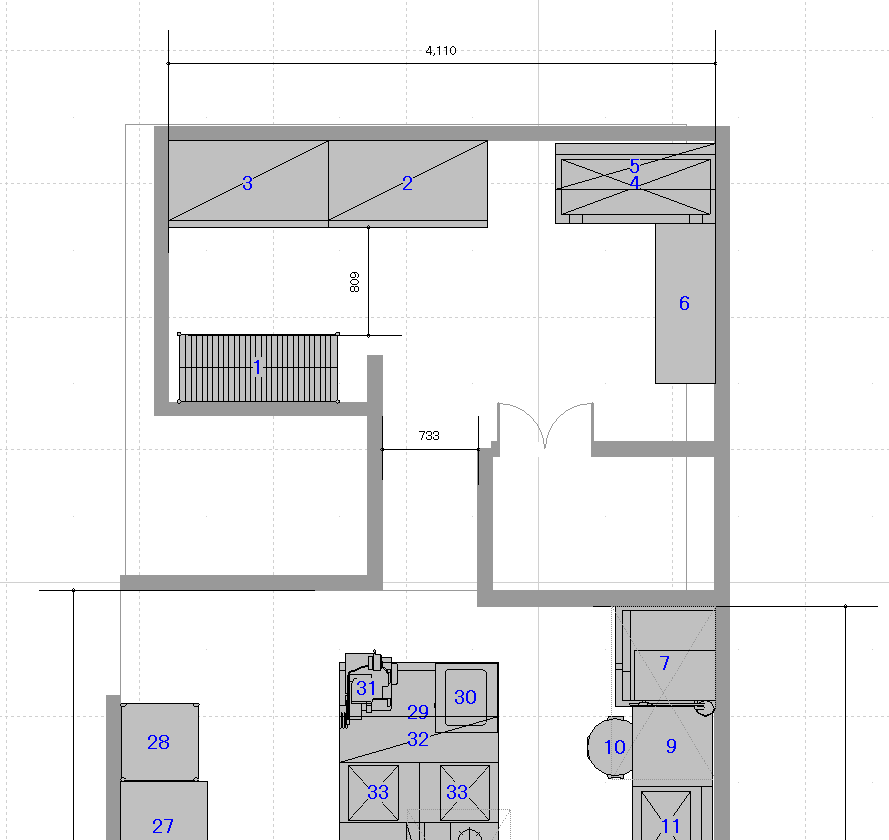
和食店導入例

和食店導入例1

 

 

No. 品名 品番 W D H 数量 販売サイト
1 パンラック BPR-096 900 600 1800 1
2 縦型冷蔵庫 SRR-LV1261CS 1200 650 1950 1
3 縦型冷凍庫 SUR-UT1241CA 1200 450 800 1
4 舟形シンク BSF1-126 1200 600 800 1
5 平棚 BES25-12 1200 250 250 5
6 作業台 BW-124 1200 450 800 1
7 スチームコンベクションオーブン SSCS-05MD 680 560 685 1
8 スチームオーブン台 特注 750 750 750 1  
9 炊飯台 BW-066C 600 600 800 1
10 マイコン炊飯器 RR-S300G2-HB 490 439 460 1
11 一槽シンク BS1-066 600 600 800 1
12 横型冷蔵庫 SUR-LV1271 1200 750 800 1
13 ガス赤外線グリラー RGP-42SV 500 310 395 1
14 作業台 BW-066 600 600 800 1
15 電子ジャー JHC-720A 481 395 341 1
16 スープジャー TH-CV045 315 260 350 1
17 作業台 BW-126 1200 600 800 1
18 作業台 BW-124 1200 450 800 1
19 両面吊戸棚 特注 1200 600 600 2  
20 冷蔵ショーケース FVS-PG12 1200 500 835 1
21 横型冷蔵庫 SUR-LV1261C 1200 600 800 1
22 ダスト付下付台 特注 1200 600 800 1  
23 上棚 BPT35-12 1200 350 800 1
24 2槽フィルターシンク 特注 1230 650 850 1  
25 棚メタルラック PA1390 605 307 1384 1
26 食器洗浄機 MDK8E 600 600 860 1
27 ケースラック 特注 600 650 850 1  
28 パンラック 特注 588 588 1800 1  
29 真空包装機 V-455G-1 583 582 730 1
30 真空包装機 V-280A 318 470 576 1
31 ミートスライサー HBC-2S 725 800 755 1
32 吊戸棚 BCS6-1235S 1200 350 600 2
33 一槽シンク BS1-046 450 600 800 1
34 作業台 特注 370 600 800 1  
35 ガスフライヤー MXF-076C 700 600 800 1
36 ガステーブルコンロ RGC-1265D 1200 600 200 1
37 パンラック BPS35-12B 1200 350 240 1
38 作業台 BW-124 1200 450 800 1
39 スライスマシーン MSC-90 340 320 520 1
40 冷蔵ショーケース FVS-PG12 1200 500 835 1
41 一槽シンク BS1-044 450 450 800 1
42 一槽シンク BS1-064 600 450 800 1
43 製氷機 SIM-AS4500 630 450 800 3
44 ミニオープンドア左 特注 700 50 700 1  
合計           49  

 

和食店導入例2

 

 

No. 品名 品番 W D H 数量 販売サイト
1 ガステーブルコンロ S-TGT-120 1200 780 800 1
2 中華レンジ VCR-55 550 750 750 1
3 ゆで麺器 TEU-A45 450 600 850 1
4 自動餃子焼き機専用架台 MAZ-65TB 587 557 470 1
5 自動餃子焼き機 MAZ-44B 600 750 330 1
6 ガスフライヤー MXF-076C 700 600 800 1
7 コンロ台 BWG-096 900 600 650 2
8 ガス赤外線グリル RGP-42SV 500 310 395 1
9 ガステーブルコンロ RGC-094D 900 450 200 1
10 横型冷蔵庫 SUR-LV1561 1500 600 800 3
11 一槽シンク BS1-066 600 600 800 2
12 炊飯台 BW-066C 600 600 800 1
13 炊飯器 MIRC-4D 480 480 450 1
14 作業台 BW-126 1200 600 800 1
15 電子ジャー PR-4200S 438 385 371 1
16 冷蔵ショーケース FVS-PG12 1200 500 835 1
17 製氷機 SIM-AS4500 630 450 800 1
18 調理台 BW-126 1200 600 800 2
19 酒燗器 TSK-N11R 200 280 675 1  
20 スープジャー MLSG-126 1200 600 450 1
21 食器洗浄機 MDK8E 600 600 860 1
22 二槽シンク BS2-126 1200 600 800 2
23 パンラック BPR-126 1200 600 1800 1
24 吊戸棚 BCS6-1235S 1200 350 600 3
25 平棚 BES25-09 900 200 250 3
26 作業台 特注 300 750 800 1  
27 吊戸棚 BCS6-1535S 1500 350 600 3
28 吊戸棚 BCS6-0935S 900 350 600 2
29 作業台 BW-096 900 600 800 1
30 縦型冷凍庫 SRF-LV1261 1200 650 1950 1
合計           44  

 







前へ: 次へ:


ベーカリー洋菓子中華居酒屋
ベーカリー洋菓子中華居酒屋
特選カタログ

販売代理店募集

 ただ今、三省堂実業株式会社では業務用ミキサー、製麺機、ブラスト中華レンジなどの代理店を募集しております。
  お客様との接点をより強く、より広げるためにご協力頂ける会社様は下記フォームからお問い合せ下さい。
info@sanseidou.jp

ページのトップへ戻る
お問い合わせ